
Domoplus 60
Αγλαντζιά
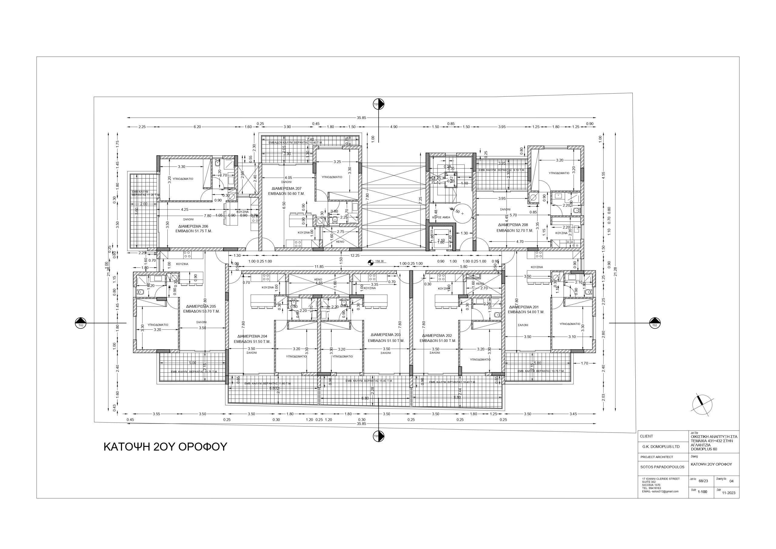
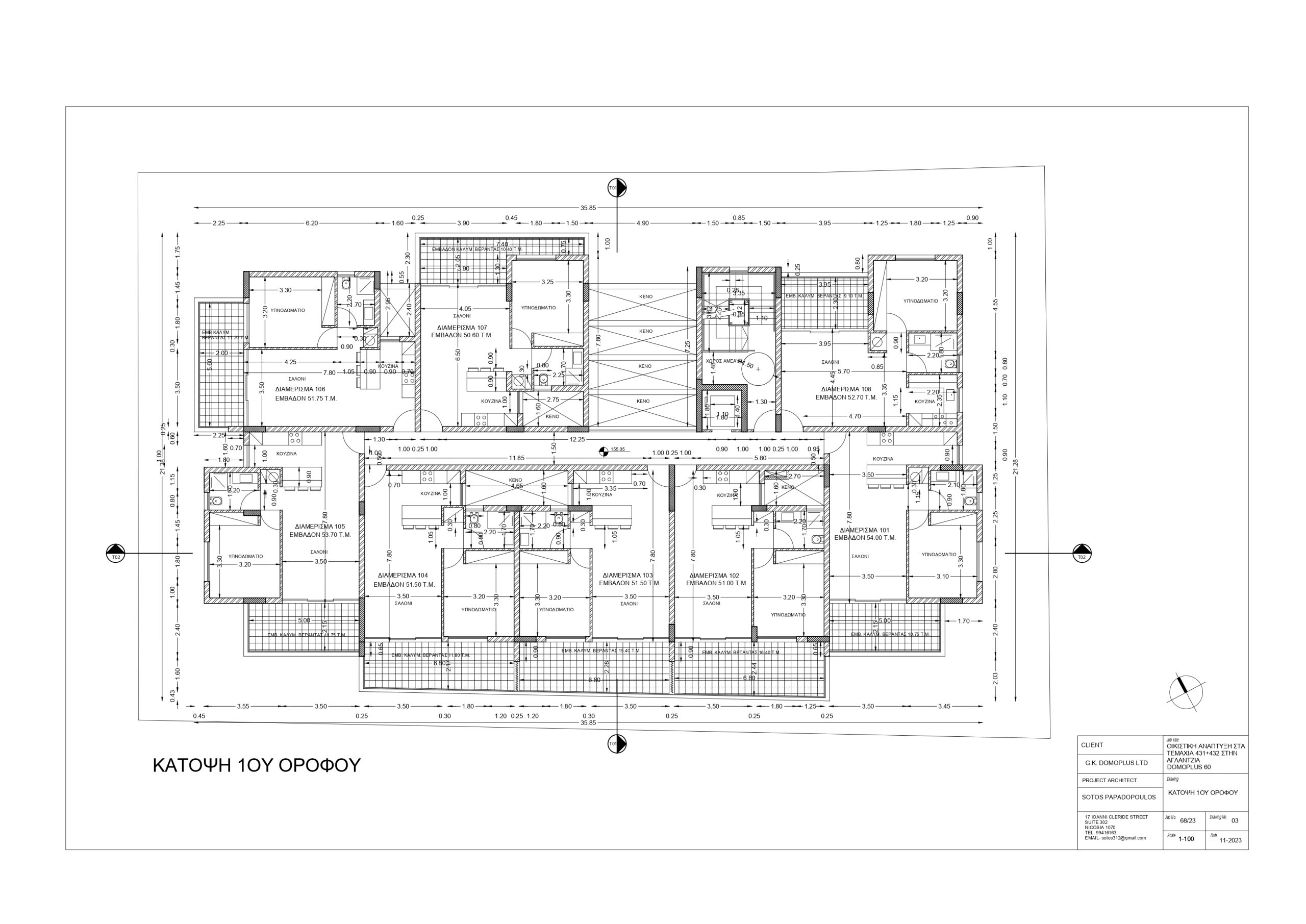
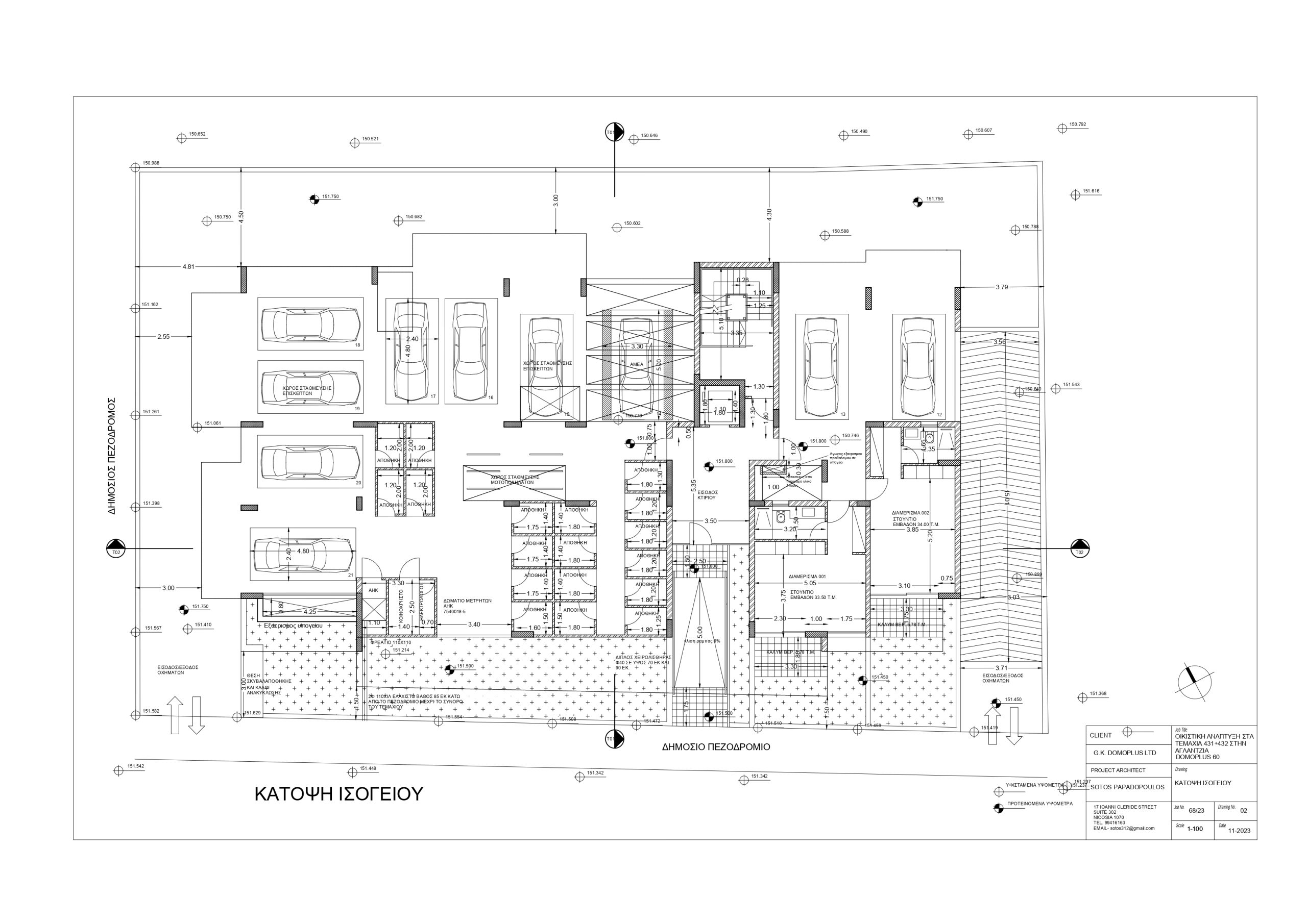
Η διώροφη οικοδομή αποτελείται από δεκαέξι (16) διαμερίσματα του ενός (1) υπνοδωματίου σε δύο ορόφους ( 1ος, 2ος) και δύο (2) διαμερίσματα studio στο ισόγειο.
Αρ. Μοναδων
Διαθέσιμα
Πρέπει να γίνει αποδοχή των cookies για να δείτε το χάρτη
Τοποθεσία
Τύπος έργου και τοποθεσία
Πολυκατοικία στην Αγλαντζιά
Οδός
ΝΙΚΟΥ ΓΡΗΓΟΡΙΟΥ 6, 2109, ΑΓΛΑΝΤΖΙΑ
Παράδοση
ΙΟΥΛΙΟΣ 2027
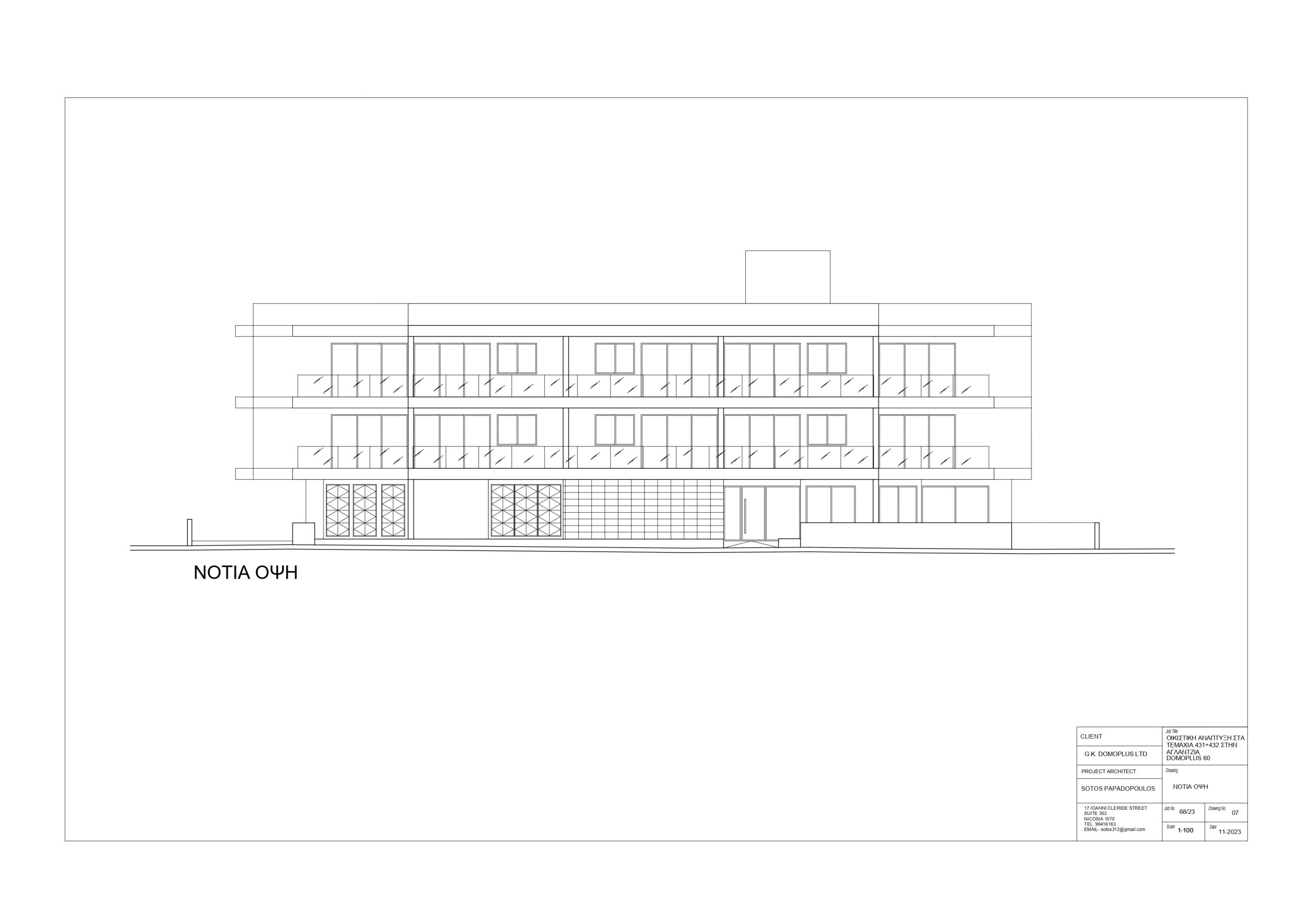
Το έργο Domoplus 60 κτίζεται σε προνομιούχα οικόπεδα στο Δήμο Αγλαντζιάς πολύ κοντά στο Πανεπιστήμιο Κύπρου. Η περιοχή θεωρείται ίσως η καλύτερη της Λευκωσίας, με εύκολη πρόσβαση προς το κέντρο ή εκτός Λευκωσίας. Ο προσανατολισμός του οικοπέδου και της πολυκατοικίας με την σωστή σχεδιαστική λειτουργικότητα, της προσδίδουν σ’ αυτήν ήλιο τον χειμώνα και δροσιά το καλοκαίρι.
Έργο
Η διώροφη οικοδομή αποτελείται από δεκαέξι (16) διαμερίσματα του ενός (1) υπνοδωματίου σε δύο ορόφους ( 1ος, 2ος) και δύο (2) διαμερίσματα studio στο ισόγειο. Οι δύο όροφοι διαθέτουν από οκτώ διαμερίσματα του 1 (ενός) υπνοδωματίου.
Στο ισόγειο υπάρχουν δύο διαμερίσματα studio.
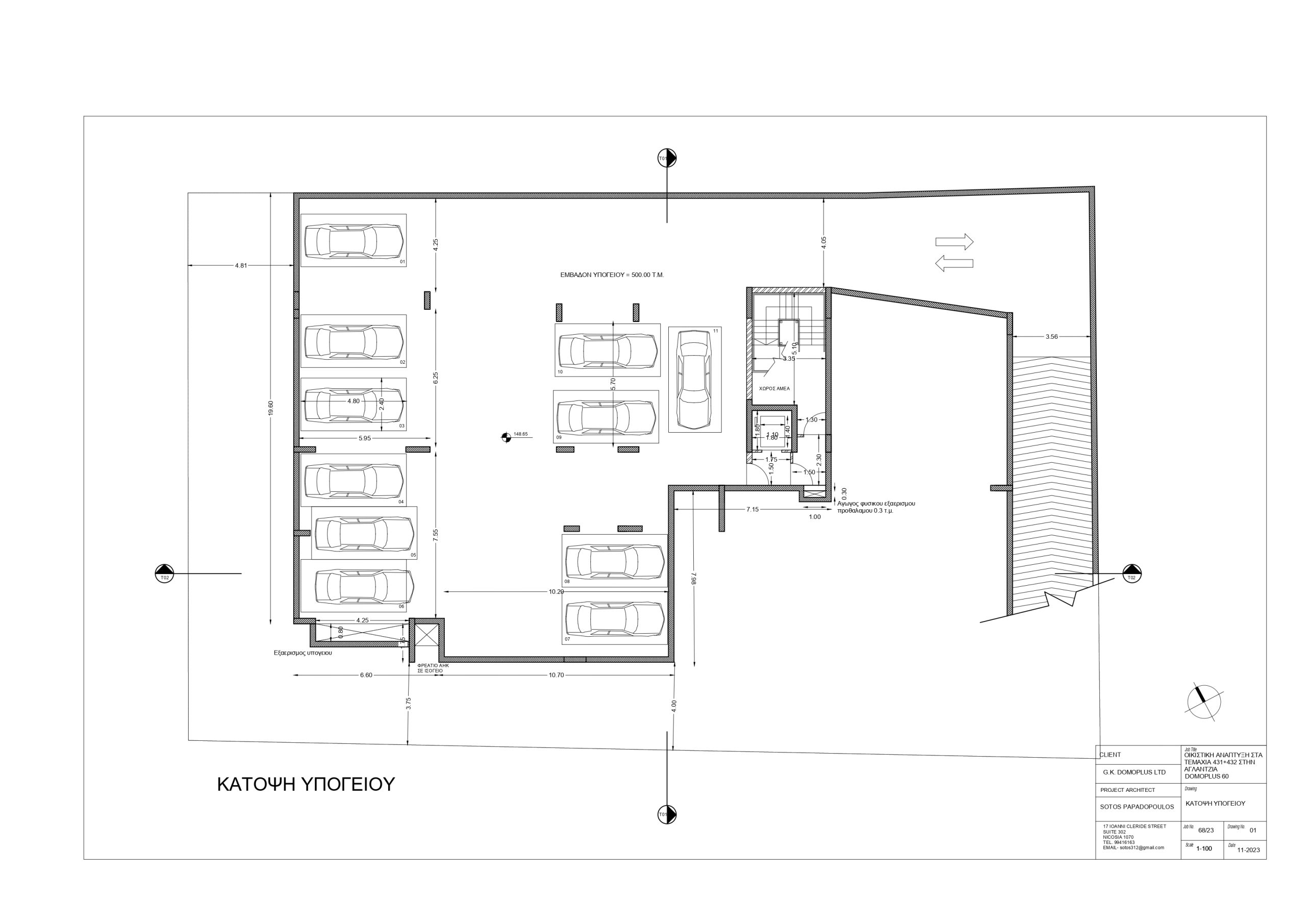
Στο υπόγειο και ισόγειο υπάρχουν λειτουργικά διαμορφωμένοι χώροι στάθμευσης για κάθε διαμέρισμα.
Η απόσταση της οικοδομής από τα σύνορα είναι μεγάλη για την ομαλή κυκλοφορία των αυτοκινήτων εντός και εκτός του χώρου στάθμευσης.
Φωτογραφίες έργου
Κατόψεις έργου
Domoplus 60
| ΔΙΑΜΕΡΙΣΜΑ | ΑΡ. ΥΠΝΟΔΩΜΑΤΙΩΝ | ΚΛΕΙΣΤΟΙ ΧΩΡΟΙ | ΚΑΛΥΜΕΝΕΣ ΒΕΡΑΝΤΕΣ | ΑΠΟΘΗΚΗ | PARKING | ΔΙΑΘΕΣΙΜΟΤΗΤΑ |
|---|---|---|---|---|---|---|
| 001 | 1 | 34 | 6 | 2 | 1 | ΠΩΛΗΘΗΚΕ |
| 002 | 1 | 34 | 6 | 2 | 1 | ΠΩΛΗΘΗΚΕ |
| 101 | 1 | 54 | 11 | 2 | 1 | ΔΙΑΘΕΣΙΜΟ |
| 102 | 1 | 51 | 16 | 2 | 1 | ΔΙΑΘΕΣΙΜΟ |
| 103 | 1 | 51 | 15 | 2 | 1 | ΔΙΑΘΕΣΙΜΟ |
| 104 | 1 | 51 | 12 | 2 | 1 | ΔΙΑΘΕΣΙΜΟ |
| 105 | 1 | 54 | 11 | 2 | 1 | ΔΙΑΘΕΣΙΜΟ |
| 106 | 1 | 52 | 11 | 2 | 1 | ΠΩΛΗΘΗΚΕ |
| 107 | 1 | 51 | 10 | 2 | 1 | ΔΙΑΘΕΣΙΜΟ |
| 108 | 1 | 53 | 9 | 2 | 1 | ΔΙΑΘΕΣΙΜΟ |
| 201 | 1 | 54 | 11 | 2 | 1 | ΔΙΑΘΕΣΙΜΟ |
| 202 | 1 | 51 | 16 | 2 | 1 | ΔΙΑΘΕΣΙΜΟ |
| 203 | 1 | 51 | 15 | 2 | 1 | ΔΙΑΘΕΣΙΜΟ |
| 204 | 1 | 51 | 12 | 2 | 1 | ΔΙΑΘΕΣΙΜΟ |
| 205 | 1 | 54 | 11 | 2 | 1 | ΔΙΑΘΕΣΙΜΟ |
| 206 | 1 | 52 | 11 | 2 | 1 | ΔΙΑΘΕΣΙΜΟ |
| 207 | 1 | 51 | 10 | 2 | 1 | ΔΙΑΘΕΣΙΜΟ |
| 208 | 1 | 53 | 24 | 2 | 1 | ΔΙΑΘΕΣΙΜΟ |
Όλα τα πιο πάνω είναι οι προδιαγραφές, τα υλικά και οι τιμές μονάδας που προβλέπονται για την ανέγερση των διαμερισμάτων. Σε περίπτωση που ο αγοραστής θελήσει να κάνει τροποποιήσεις υλικών θα πρέπει να συμφωνηθούν γραπτώς προηγουμένως. Το ίδιο ισχύει και για τυχόν κατεδαφίσεις εργασιών που έχουν ήδη εκτελεστεί.
Οι αγοραστές δεν έχουν το δικαίωμα αλλαγών στην εξωτερική εμφάνιση της πολυκατοικίας και δεν δικαιούνται οποιανδήποτε προσθήκη η οποία θα δημιουργεί προβλήματα στην κάλυψη σε τετραγωνικά μέτρα σε αντίθεση με τις ισχύουσες πολεοδομικές διατάξεις.
Οι τιμές που καθορίζονται στην Τεχνικές Προδιαγραφές είναι διαφορετικές των τιμών που θα αφαιρούνται σε περίπτωση άλλης επιλογής προμηθευτή από τον αγοραστή. Η συνεργασία των εταιρειών με συγκεκριμένους Οίκους προϋποθέτει την ομαλή και απρόσκοπτη εκτέλεση των εργασιών. Από τις τιμές που καθορίζονται στις τεχνικές προδιαγραφές θα αφαιρείται 30% σε περίπτωση επιλογής άλλου προμηθευτή από τον Αγοραστή.















