
Domoplus 73
Στρόβολος
Η διώροφη οικοδομή αποτελείται από έξι (6) διαμερίσματα του ενός (1) & δύο (2) υπνοδωματίων.
Αρ. Μοναδων
Διαθέσιμα
Πρέπει να γίνει αποδοχή των cookies για να δείτε το χάρτη
Τοποθεσία
Τύπος έργου και τοποθεσία
Πολυκατοικία στο Στρόβολο
Οδός
ΒΑΣΙΛΕΙΟΥ ΑΙΓΙΝΗΤΗ 6, 2038, ΣΤΡΟΒΟΛΟΣ
Παράδοση
ΙΟΥΛΙΟΣ 2027
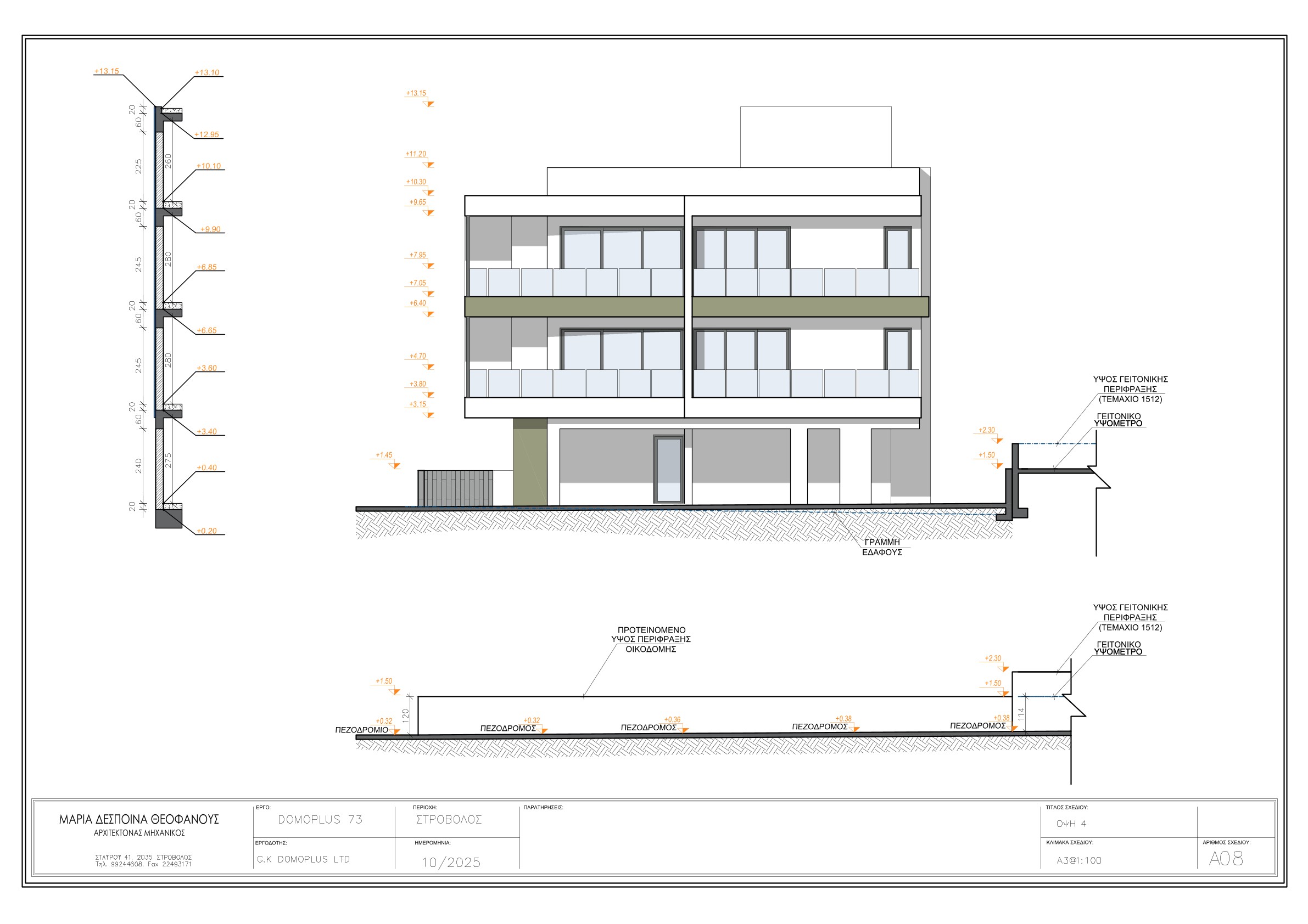
Το έργο Domoplus 73 κτίζεται σε προνομιακό οικόπεδο στο Δήμο Στροβόλου. Η περιοχή θεωρείται προνομιακή με εύκολη πρόσβαση προς το κέντρο ή εκτός Λευκωσίας. Ο προσανατολισμός του οικοπέδου και της πολυκατοικίας με την σωστή σχεδιαστική λειτουργικότητα της, προσδίδουν σ’ αυτήν ήλιο τον χειμώνα και δροσιά το καλοκαίρι.
Έργο
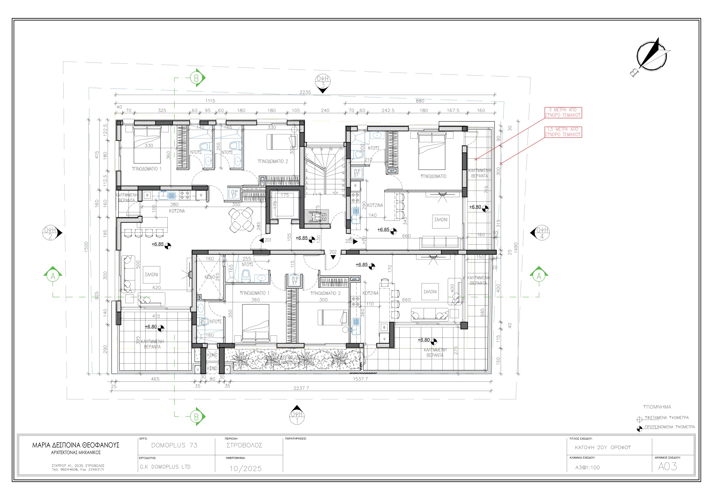
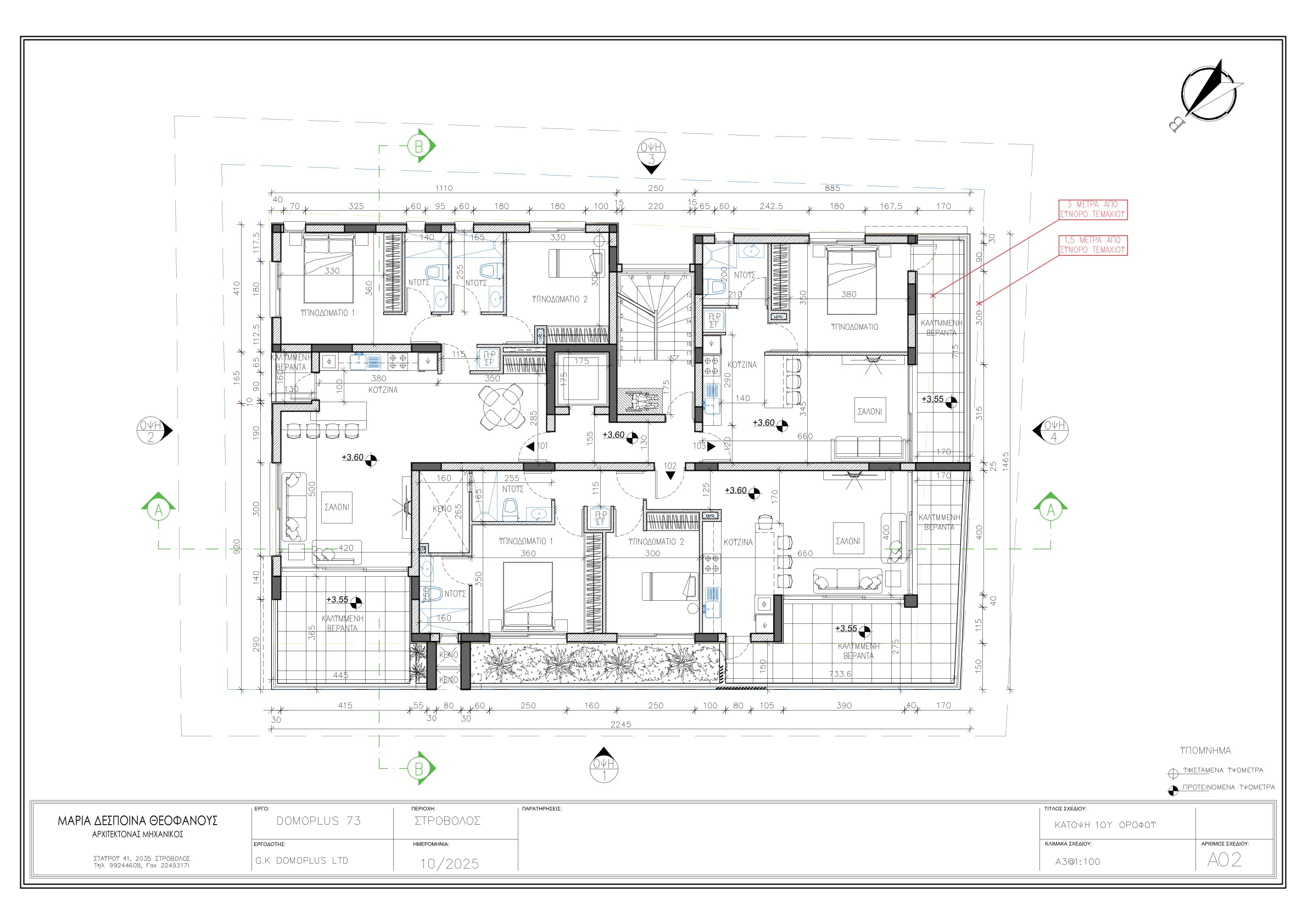
Η διώροφη οικοδομή αποτελείται από έξι (6) διαμερίσματα του ενός (1) & δύο (2) υπνοδωματίων.
Κάθε όροφος διαθέτουν από τρία (3) διαμερίσματα. Ένα του ενός (1) υπνοδωματίου και δύο των δύο (2) υπνοδωματίων.
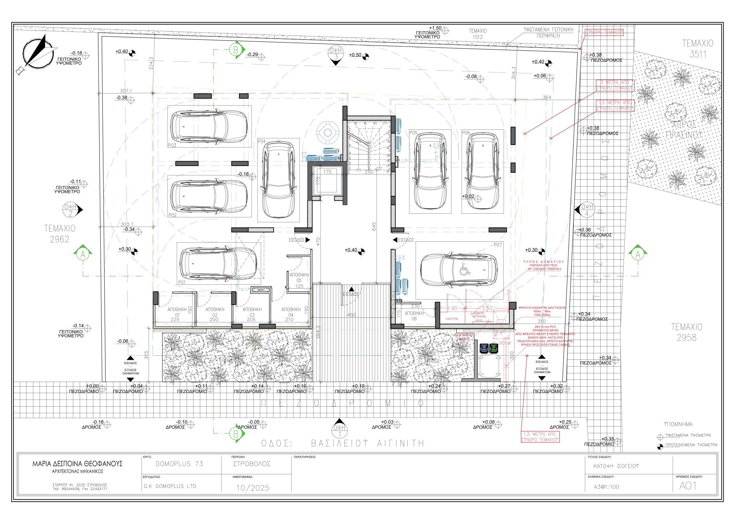
Στο υπόστεγο υπάρχουν αποθήκες, μία για κάθε διαμέρισμα και λειτουργικά διαμορφωμένοι χώροι στάθμευσης, για κάθε διαμέρισμα.
Η απόσταση της οικοδομής από τα σύνορα είναι μεγάλη για την ομαλή κυκλοφορία των αυτοκινήτων εντός και εκτός του χώρου στάθμευσης.
Φωτογραφίες έργου
Κατόψεις έργου
Domoplus 73
| ΔΙΑΜΕΡΙΣΜΑ | ΑΡ. ΥΠΝΟΔΩΜΑΤΙΩΝ | ΚΛΕΙΣΤΟΙ ΧΩΡΟΙ | ΚΑΛΥΜΕΝΕΣ ΒΕΡΑΝΤΕΣ | ΑΠΟΘΗΚΗ | PARKING | ΔΙΑΘΕΣΙΜΟΤΗΤΑ |
|---|---|---|---|---|---|---|
| 101 | 2 | 93 | 19 | 3 | 1 | ΠΩΛΗΘΗΚΕ |
| 102 | 2 | 82 | 26 | 3 | 1 | ΠΩΛΗΘΗΚΕ |
| 103 | 1 | 53 | 13 | 2 | 1 | ΔΙΑΘΕΣΙΜΟ |
| 201 | 2 | 93 | 19 | 3 | 1 | ΠΩΛΗΘΗΚΕ |
| 202 | 2 | 82 | 25 | 3 | 1 | ΔΙΑΘΕΣΙΜΟ |
| 203 | 1 | 53 | 12 | 2 | 1 | ΔΙΑΘΕΣΙΜΟ |
Σε περίπτωση που ο αγοραστής θελήσει να κάνει τροποποιήσεις υλικών θα πρέπει να συμφωνηθούν γραπτώς προηγουμένως. Το ίδιο ισχύει και για τυχόν κατεδαφίσεις εργασιών που έχουν ήδη εκτελεστεί.
Ο αγοραστής δεν έχει το δικαίωμα αλλαγών στην εξωτερική εμφάνιση της πολυκατοικίας και δεν δικαιούται οποιανδήποτε προσθήκη η οποία θα δημιουργεί προβλήματα στην κάλυψη σε τετραγωνικά μέτρα σε αντίθεση με τις ισχύουσες πολεοδομικές διατάξεις.
Οι τιμές που καθορίζονται στην Τεχνικές Προδιαγραφές είναι διαφορετικές των τιμών που θα αφαιρούνται σε περίπτωση άλλης επιλογής προμηθευτή από τον αγοραστή. Η συνεργασία των εταιρειών με συγκεκριμένους Οίκους προϋποθέτει την ομαλή και απρόσκοπτη εκτέλεση των εργασιών. Από τις τιμές που καθορίζονται στις τεχνικές προδιαγραφές θα αφαιρείται 30% σε περίπτωση επιλογής άλλου προμηθευτή από τον Αγοραστή.











