
Domoplus 74
Έγκωμη
Η τριώροφη οικοδομή αποτελείται από οκτώ (8) διαμερίσματα. Έξι (6) του ενός (1) υπνοδωματίου και δύο (2) των δύο (2) υπνοδωματίων.
Αρ. Μοναδων
Διαθέσιμα
Πρέπει να γίνει αποδοχή των cookies για να δείτε το χάρτη
Τοποθεσία
Τύπος έργου και τοποθεσία
Πολυκατοικία στην Έγκωμη
Οδός
ΜΑΝΤΟΥΣ ΜΑΥΡΟΓΕΝΟΥΣ 9, 2414, ΕΓΚΩΜΗ
Παράδοση
ΙΟΥΛΙΟΣ 2027
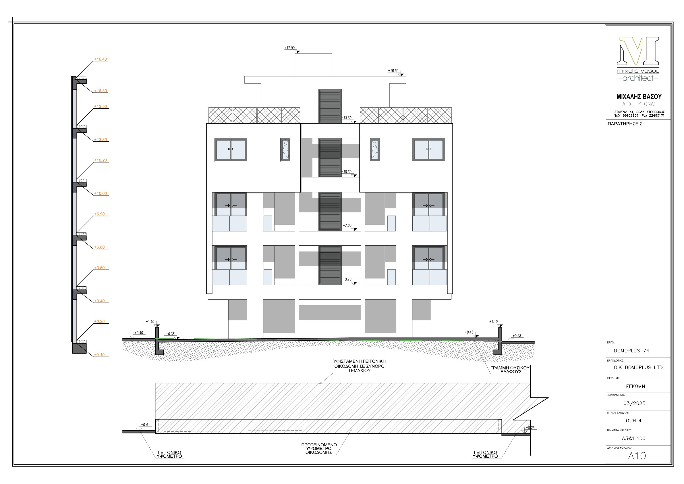
Το έργο Domoplus 74 κτίζεται σε οικόπεδο στην περιοχή Έγκωμης. Η περιοχή θεωρείται ίσως η καλύτερη της Λευκωσίας. Ο προσανατολισμός του οικοπέδου και της πολυκατοικίας με την σωστή σχεδιαστική λειτουργικότητα της, προσδίδουν σ’ αυτήν ήλιο τον χειμώνα και δροσιά το καλοκαίρι.
Έργο
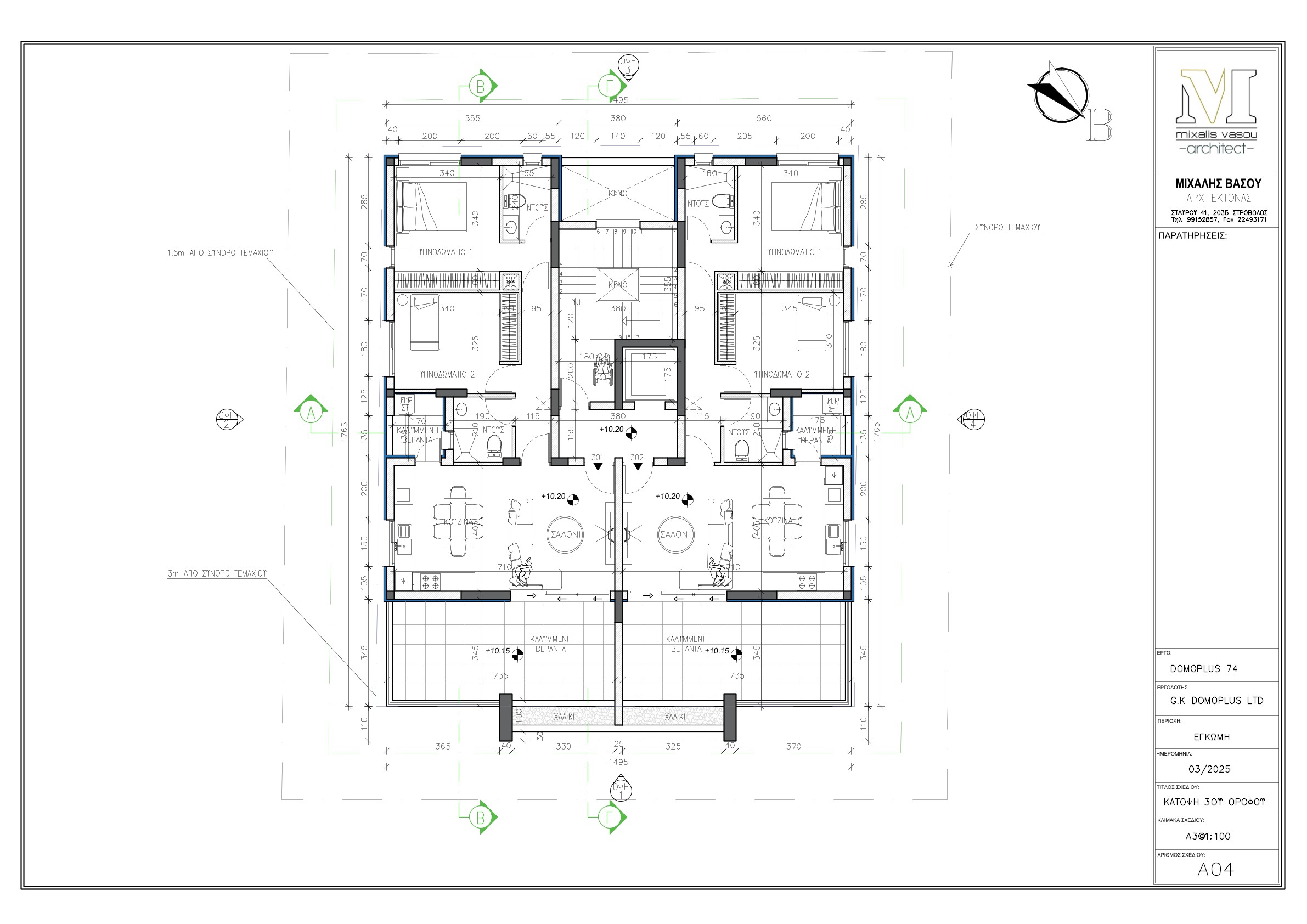
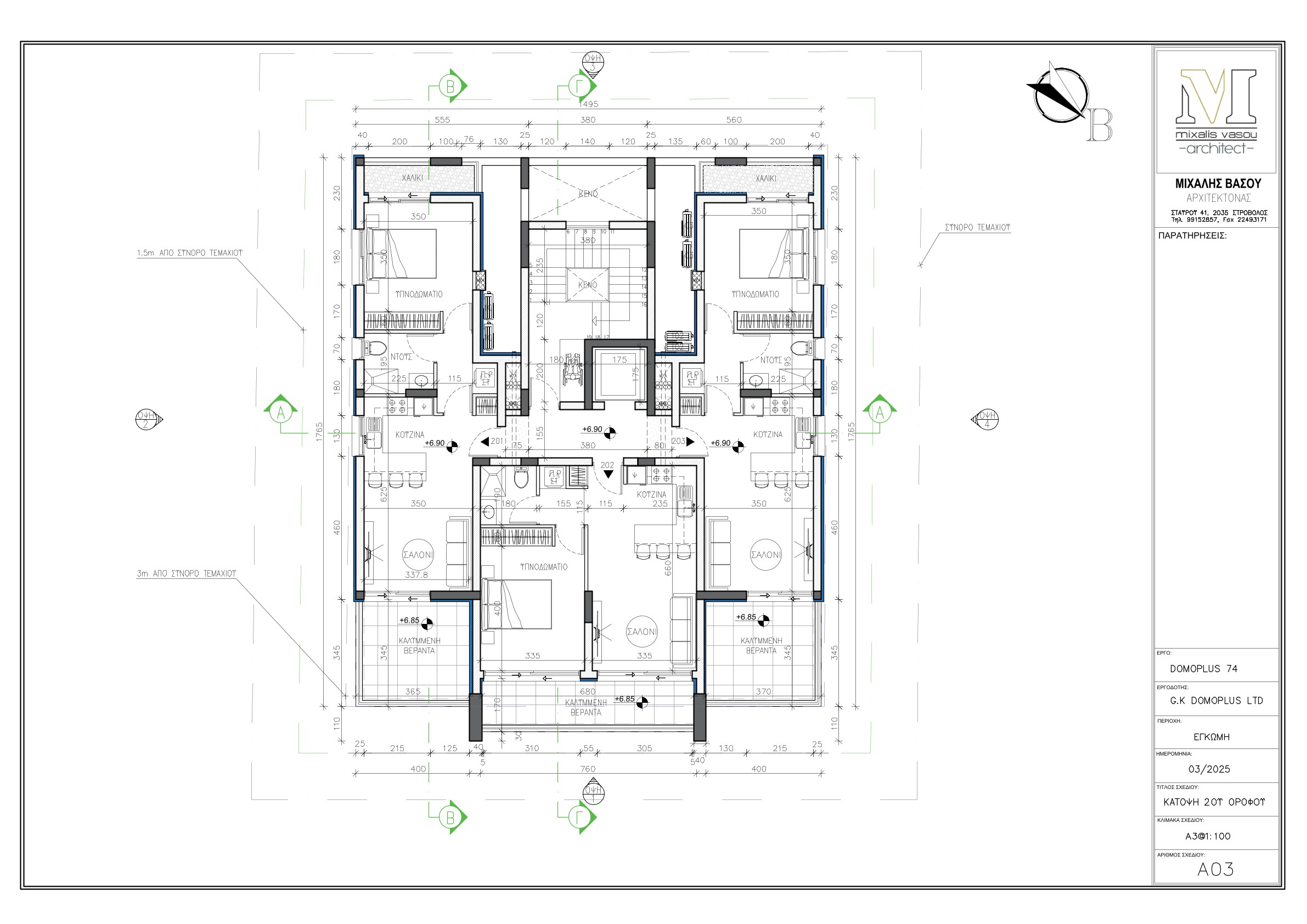
Η τριώροφη οικοδομή αποτελείται από οκτώ (8) διαμερίσματα. Έξι (6) του ενός (1) υπνοδωματίου και δύο (2) των δύο (2) υπνοδωματίων.
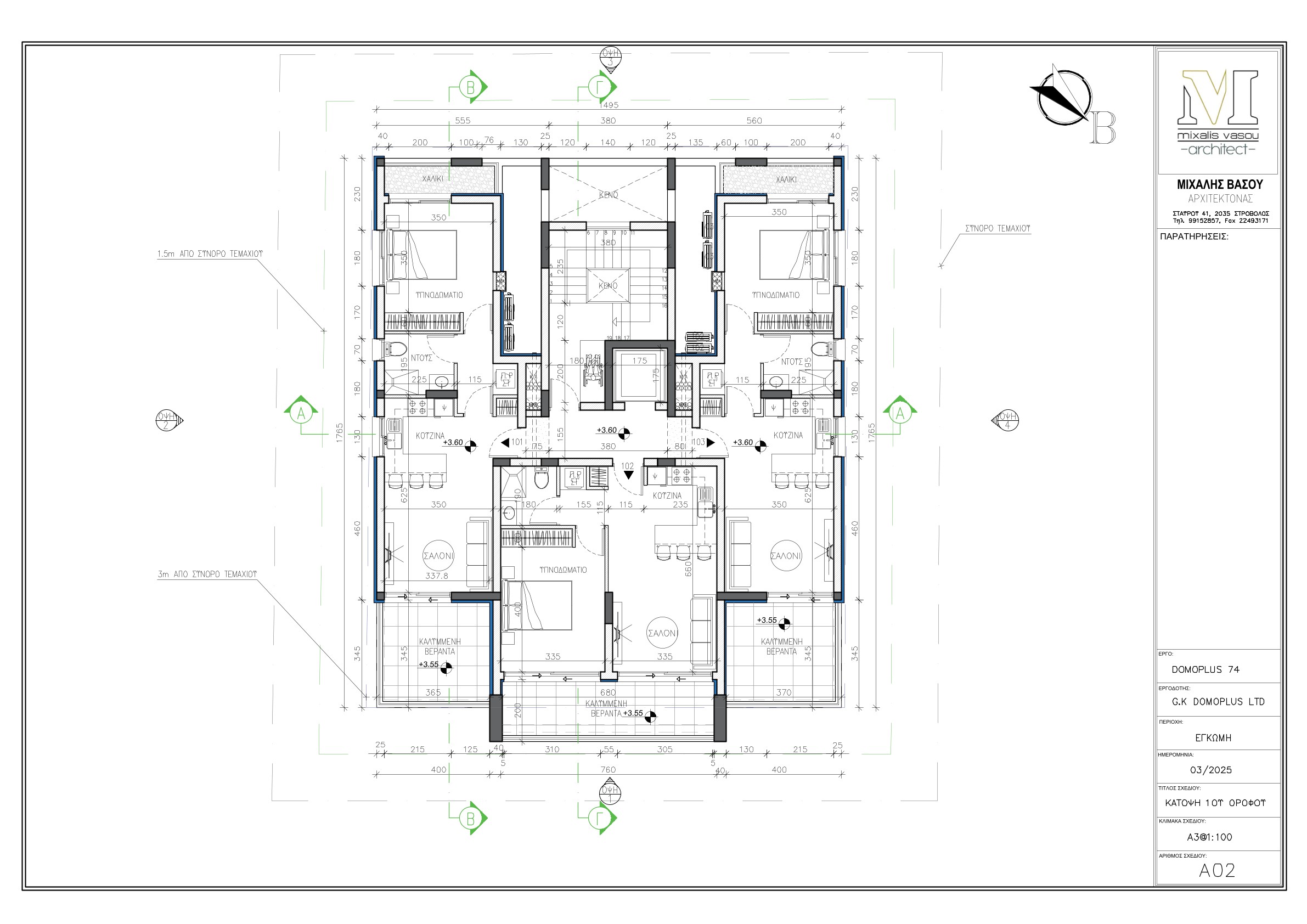
Ο πρώτος και ο δεύτερος όροφος διαθέτουν έξι (6) διαμερίσματα. Τρία (3) διαμερίσματα ενός (1ος) υπνοδωματίου ο κάθε όροφος. Ο τρίτος όροφος διαθέτει δύο (2) διαμερίσματα των δύο (2) υπνοδωματίων.
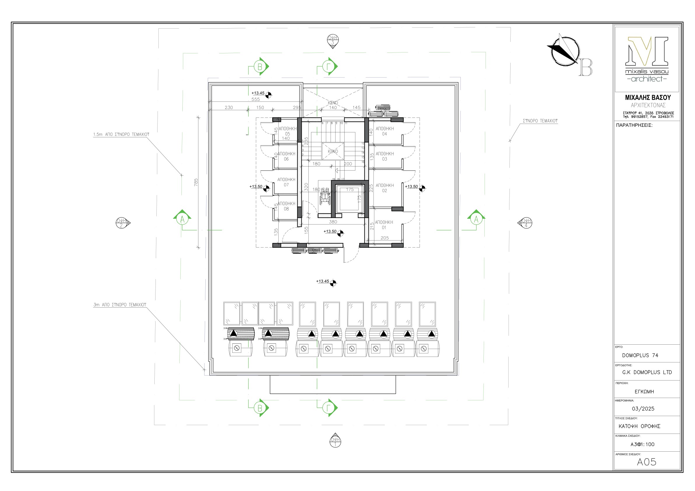
Στο υπόστεγο υπάρχουν λειτουργικά διαμορφωμένοι χώροι στάθμευσης, ένας για κάθε διαμέρισμα. Στην οροφή υπάρχουν αποθήκες, μία για κάθε διαμέρισμα.
Φωτογραφίες έργου
Κατόψεις έργου
Domoplus 74
| ΔΙΑΜΕΡΙΣΜΑ | ΑΡ. ΥΠΝΟΔΩΜΑΤΙΩΝ | ΚΛΕΙΣΤΟΙ ΧΩΡΟΙ | ΚΑΛΥΜΕΝΕΣ ΒΕΡΑΝΤΕΣ | ΑΠΟΘΗΚΗ | PARKING | ΔΙΑΘΕΣΙΜΟΤΗΤΑ |
|---|---|---|---|---|---|---|
| 101 | 1 | 54 | 11 | 2 | 1 | ΔΙΑΘΕΣΙΜΟ |
| 102 | 1 | 52 | 12 | 2 | 1 | ΠΩΛΗΘΗΚΕ |
| 103 | 1 | 54 | 11 | 2 | 1 | ΠΩΛΗΘΗΚΕ |
| 201 | 1 | 54 | 11 | 2 | 1 | ΔΙΑΘΕΣΙΜΟ |
| 202 | 1 | 52 | 10 | 2 | 1 | ΔΙΑΘΕΣΙΜΟ |
| 203 | 1 | 54 | 11 | 2 | 1 | ΠΩΛΗΘΗΚΕ |
| 301 | 2 | 83 | 27 | 4 | 1 | ΠΩΛΗΘΗΚΕ |
| 302 | 2 | 83 | 27 | 4 | 1 | ΠΩΛΗΘΗΚΕ |
Όλα τα πιο πάνω είναι οι προδιαγραφές, τα υλικά και οι τιμές μονάδας που προβλέπονται για την ανέγερση των διαμερισμάτων. Σε περίπτωση που ο αγοραστής θελήσει να κάνει τροποποιήσεις υλικών θα πρέπει να συμφωνηθούν γραπτώς προηγουμένως. Το ίδιο ισχύει και για τυχόν κατεδαφίσεις εργασιών που έχουν ήδη εκτελεστεί. Οι αγοραστές δεν έχουν το δικαίωμα αλλαγών στην εξωτερική εμφάνιση της πολυκατοικίας και δεν δικαιούνται οποιανδήποτε προσθήκη η οποία θα δημιουργεί προβλήματα στην κάλυψη σε τετραγωνικά μέτρα σε αντίθεση με τις ισχύουσες πολεοδομικές διατάξεις. Οι τιμές που καθορίζονται στην Τεχνικές Προδιαγραφές είναι διαφορετικές των τιμών που θα αφαιρούνται σε περίπτωση άλλης επιλογής προμηθευτή από τον αγοραστή. Η συνεργασία των εταιρειών με συγκεκριμένους Οίκους προϋποθέτει την ομαλή και απρόσκοπτη εκτέλεση των εργασιών. Από τις τιμές που καθορίζονται στις τεχνικές προδιαγραφές θα αφαιρείται 30% σε περίπτωση επιλογής άλλου προμηθευτή από τον Αγοραστή.













