
Domoplus 75
Στρόβολος
Η τριώροφη οικοδομή αποτελείται από έξι (6) διαμερίσματα των τριών και δύο υπνοδωματίων.
Αρ. Μοναδων
Διαθέσιμα
Πρέπει να γίνει αποδοχή των cookies για να δείτε το χάρτη
Τοποθεσία
Τύπος έργου και τοποθεσία
Πολυκατοικία στο Στρόβολο
Οδός
ΙΩΝΑ ΝΙΚΟΛΑΟΥ 1, 2015, ΣΤΡΟΒΟΛΟΣ
Παράδοση
ΜΑΡΤΙΟΣ 2027
Το έργο Domoplus 75 κτίζεται σε προνομιακό οικόπεδο στο Δήμο Στροβόλου. Η περιοχή θεωρείται προνομιακή με εύκολη πρόσβαση προς το κέντρο ή εκτός Λευκωσίας. Ο προσανατολισμός του οικοπέδου και της πολυκατοικίας με την σωστή σχεδιαστική λειτουργικότητα της, προσδίδουν σ’ αυτήν ήλιο τον χειμώνα και δροσιά το καλοκαίρι.
Έργο
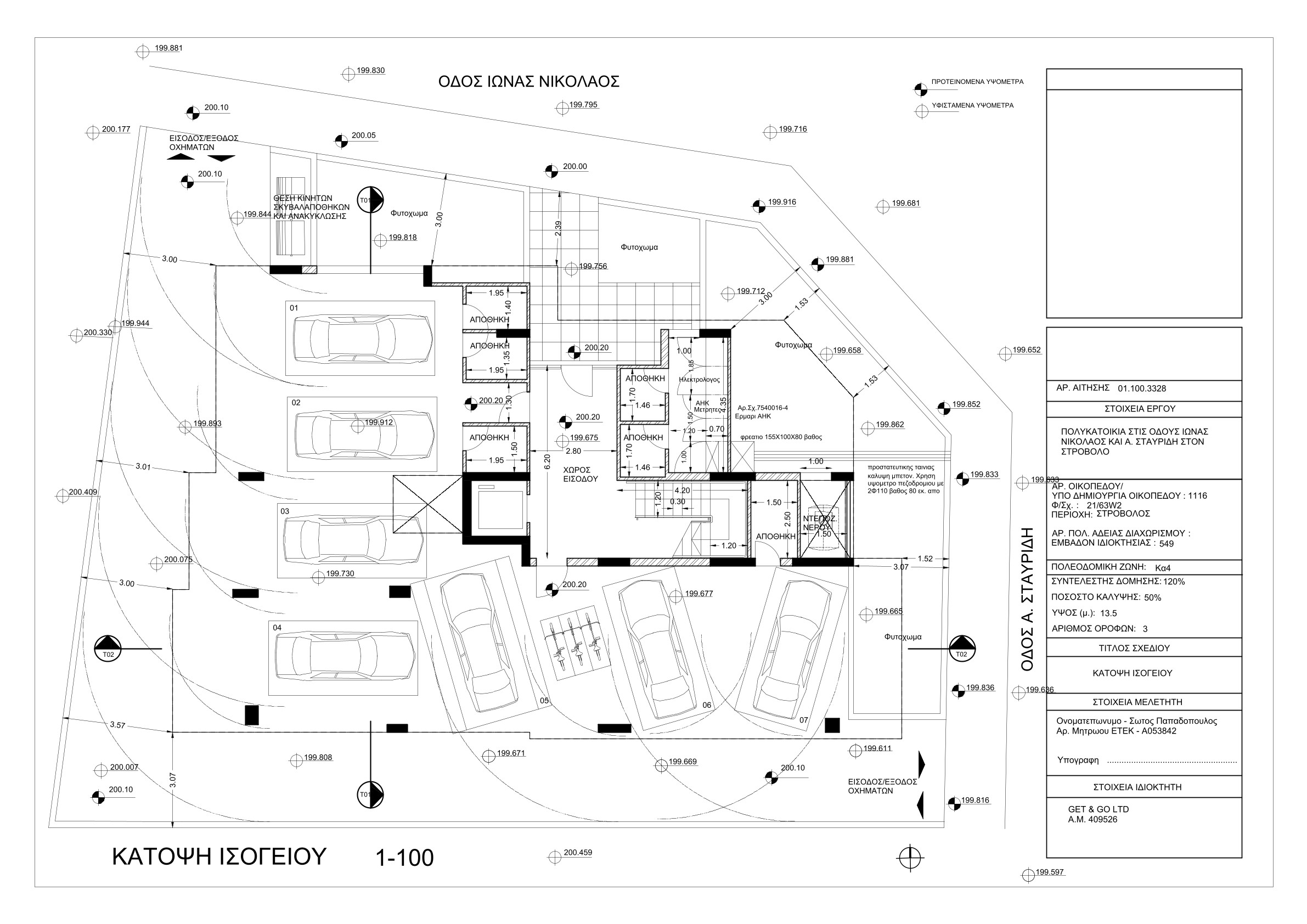
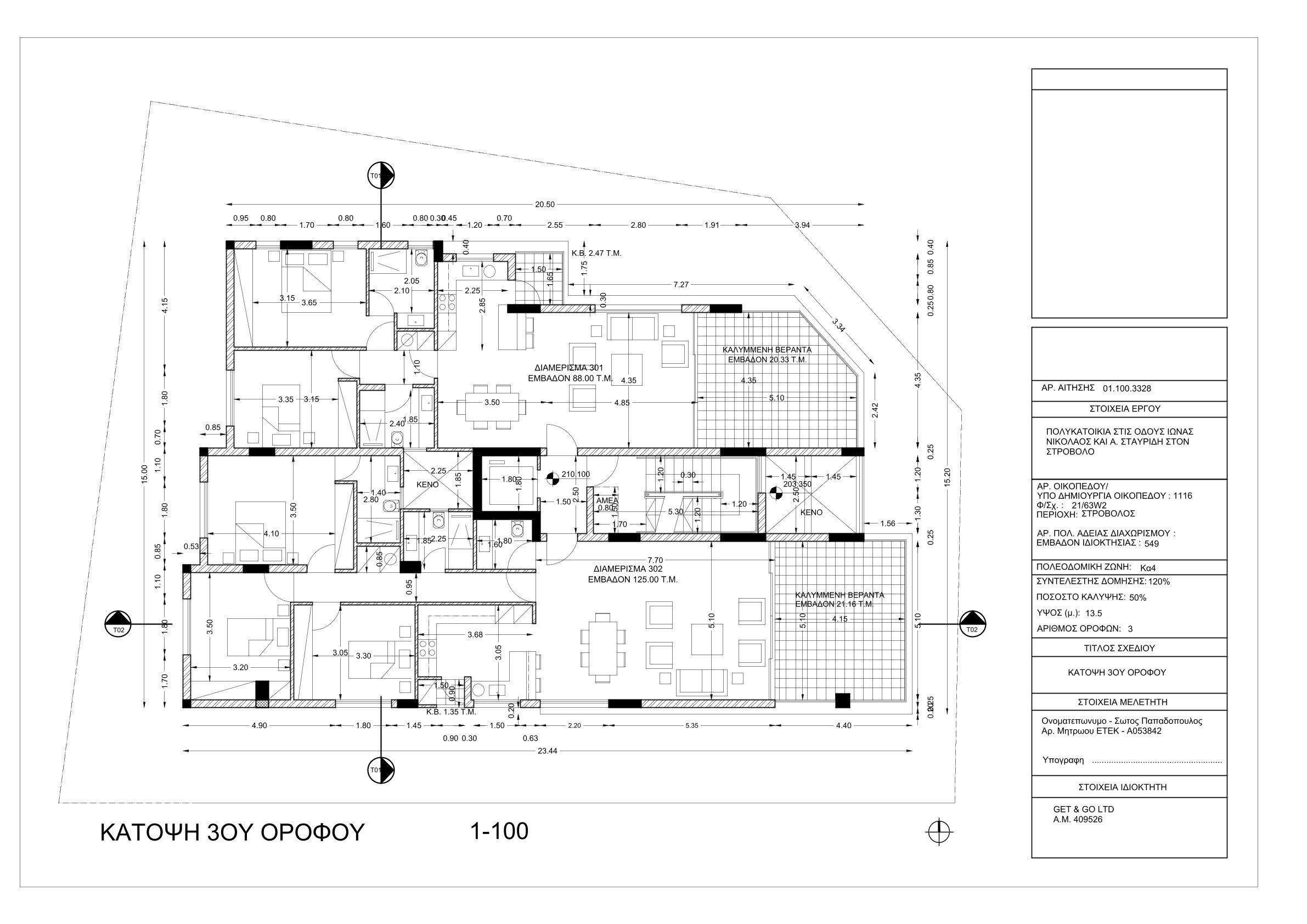
Η τριώροφη οικοδομή αποτελείται από έξι (6) διαμερίσματα των τριών και δύο υπνοδωματίων.
Κάθε όροφος διαθέτουν από δύο (2) διαμέρισμα. Ένα διαμέρισμα των δύο (2) υπνοδωματίων και ένα διαμέρισμα των τριών (3ων) υπνοδωματίων.
Στο υπόστεγο υπάρχουν αποθήκες και λειτουργικά διαμορφωμένοι χώροι στάθμευσης, για κάθε διαμέρισμα. Η απόσταση της οικοδομής από τα σύνορα είναι μεγάλη για την ομαλή κυκλοφορία των αυτοκινήτων εντός και εκτός του χώρου στάθμευσης.
Φωτογραφίες έργου
Κατόψεις έργου
Domoplus 75
| ΔΙΑΜΕΡΙΣΜΑ | ΑΡ. ΥΠΝΟΔΩΜΑΤΙΩΝ | ΚΛΕΙΣΤΟΙ ΧΩΡΟΙ | ΚΑΛΥΜΕΝΕΣ ΒΕΡΑΝΤΕΣ | ΑΠΟΘΗΚΗ | PARKING | ΔΙΑΘΕΣΙΜΟΤΗΤΑ |
|---|---|---|---|---|---|---|
| 101 | 1 | 54 | 11 | 2 | 1 | ΔΙΑΘΕΣΙΜΟ |
| 102 | 1 | 52 | 12 | 2 | 1 | ΠΩΛΗΘΗΚΕ |
| 103 | 1 | 54 | 11 | 2 | 1 | ΠΩΛΗΘΗΚΕ |
| 201 | 1 | 54 | 11 | 2 | 1 | ΔΙΑΘΕΣΙΜΟ |
| 202 | 1 | 52 | 10 | 2 | 1 | ΔΙΑΘΕΣΙΜΟ |
| 203 | 1 | 54 | 11 | 2 | 1 | ΠΩΛΗΘΗΚΕ |
| 301 | 2 | 83 | 27 | 4 | 1 | ΠΩΛΗΘΗΚΕ |
| 302 | 2 | 83 | 27 | 4 | 1 | ΠΩΛΗΘΗΚΕ |
Σε περίπτωση που ο αγοραστής θελήσει να κάνει τροποποιήσεις υλικών θα πρέπει να συμφωνηθούν γραπτώς προηγουμένως. Το ίδιο ισχύει και για τυχόν κατεδαφίσεις εργασιών που έχουν ήδη εκτελεστεί.
Ο αγοραστής δεν έχει το δικαίωμα αλλαγών στην εξωτερική εμφάνιση της πολυκατοικίας και δεν δικαιούται οποιανδήποτε προσθήκη η οποία θα δημιουργεί προβλήματα στην κάλυψη σε τετραγωνικά μέτρα σε αντίθεση με τις ισχύουσες πολεοδομικές διατάξεις.
Οι τιμές που καθορίζονται στην Τεχνικές Προδιαγραφές είναι διαφορετικές των τιμών που θα αφαιρούνται σε περίπτωση άλλης επιλογής προμηθευτή από τον αγοραστή. Η συνεργασία των εταιρειών με συγκεκριμένους Οίκους προϋποθέτει την ομαλή και απρόσκοπτη εκτέλεση των εργασιών. Από τις τιμές που καθορίζονται στις τεχνικές προδιαγραφές θα αφαιρείται 30% σε περίπτωση επιλογής άλλου προμηθευτή από τον Αγοραστή.












