
Domoplus 78
Στρόβολος
Η τριώροφη οικοδομή αποτελείται από πέντε (5) διαμερίσματα. Τέσσερα (4) των δύο (2) υπνοδωματίων και ένα (1) των τριών (3ων) υπνοδωματίων.
Αρ. Μοναδων
Διαθέσιμα
Πρέπει να γίνει αποδοχή των cookies για να δείτε το χάρτη
Τοποθεσία
Τύπος έργου και τοποθεσία
Πολυκατοικία στο Στρόβολο
Οδός
ΒΕΛΕΣΤΙΝΟΥ, 2038, ΣΤΡΟΒΟΛΟΣ
Παράδοση
ΑΠΡΙΛΙΟΣ 2027
Το έργο Domoplus 78 κτίζεται σε οικόπεδο στην περιοχή Στροβόλου. Η περιοχή θεωρείται ίσως η καλύτερη της Λευκωσίας με εύκολη πρόσβασή εντός και εκτός Λευκωσίας. Ο προσανατολισμός του οικοπέδου και της πολυκατοικίας με την σωστή σχεδιαστική λειτουργικότητα της, προσδίδουν σ’ αυτήν ήλιο τον χειμώνα και δροσιά το καλοκαίρι.
Έργο
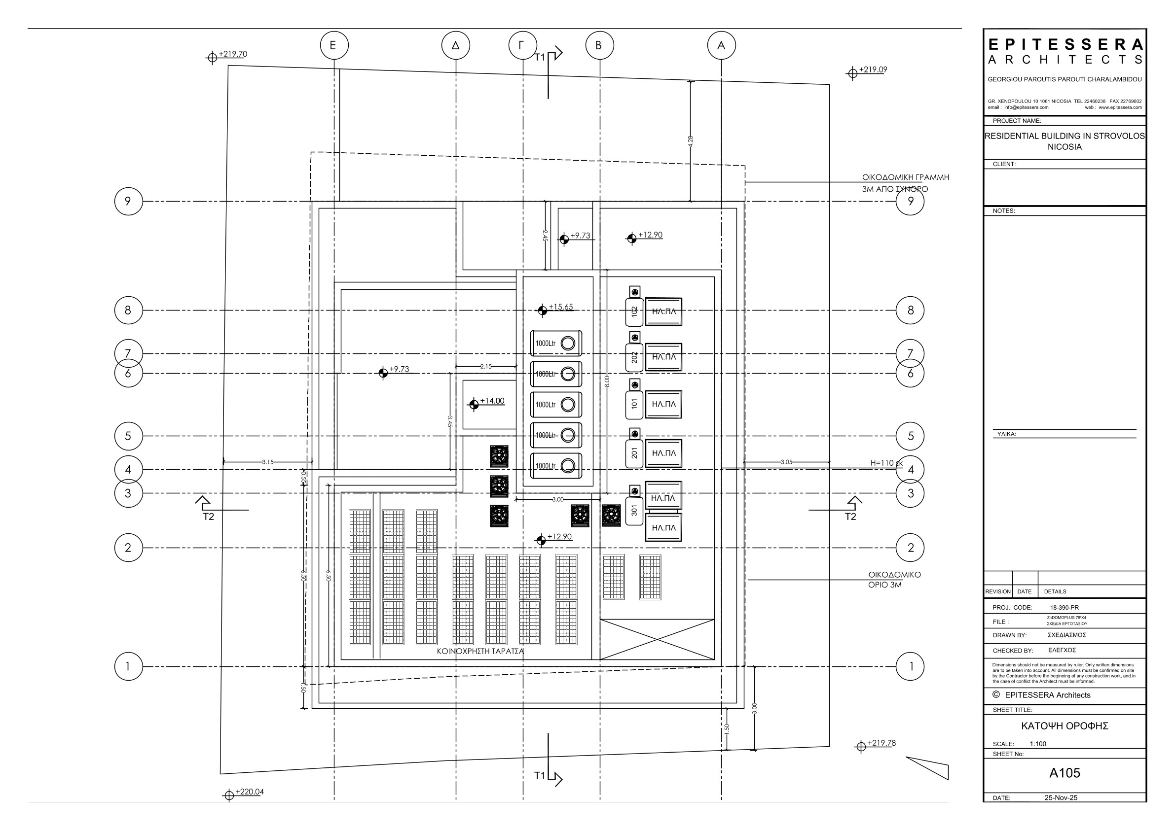
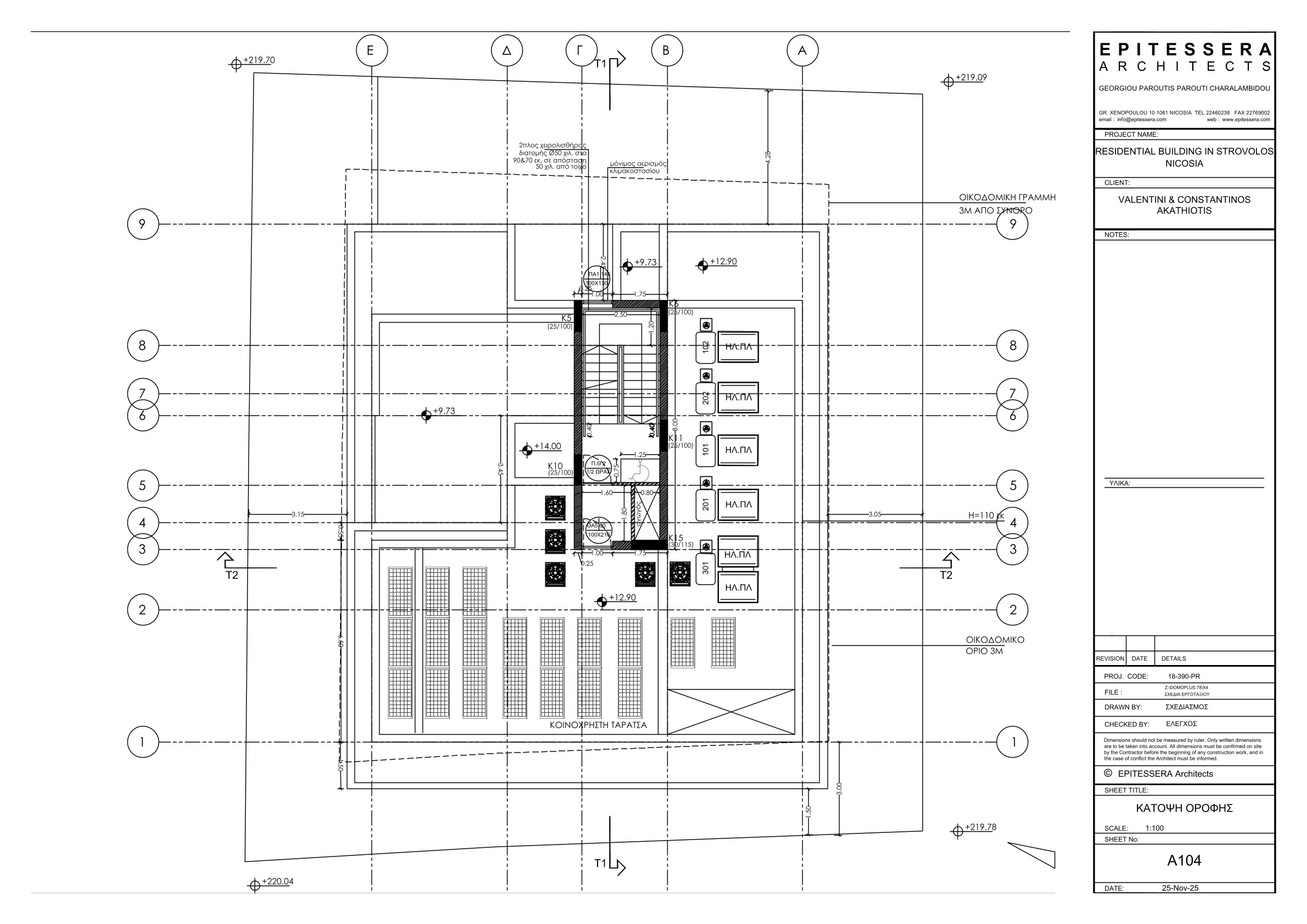
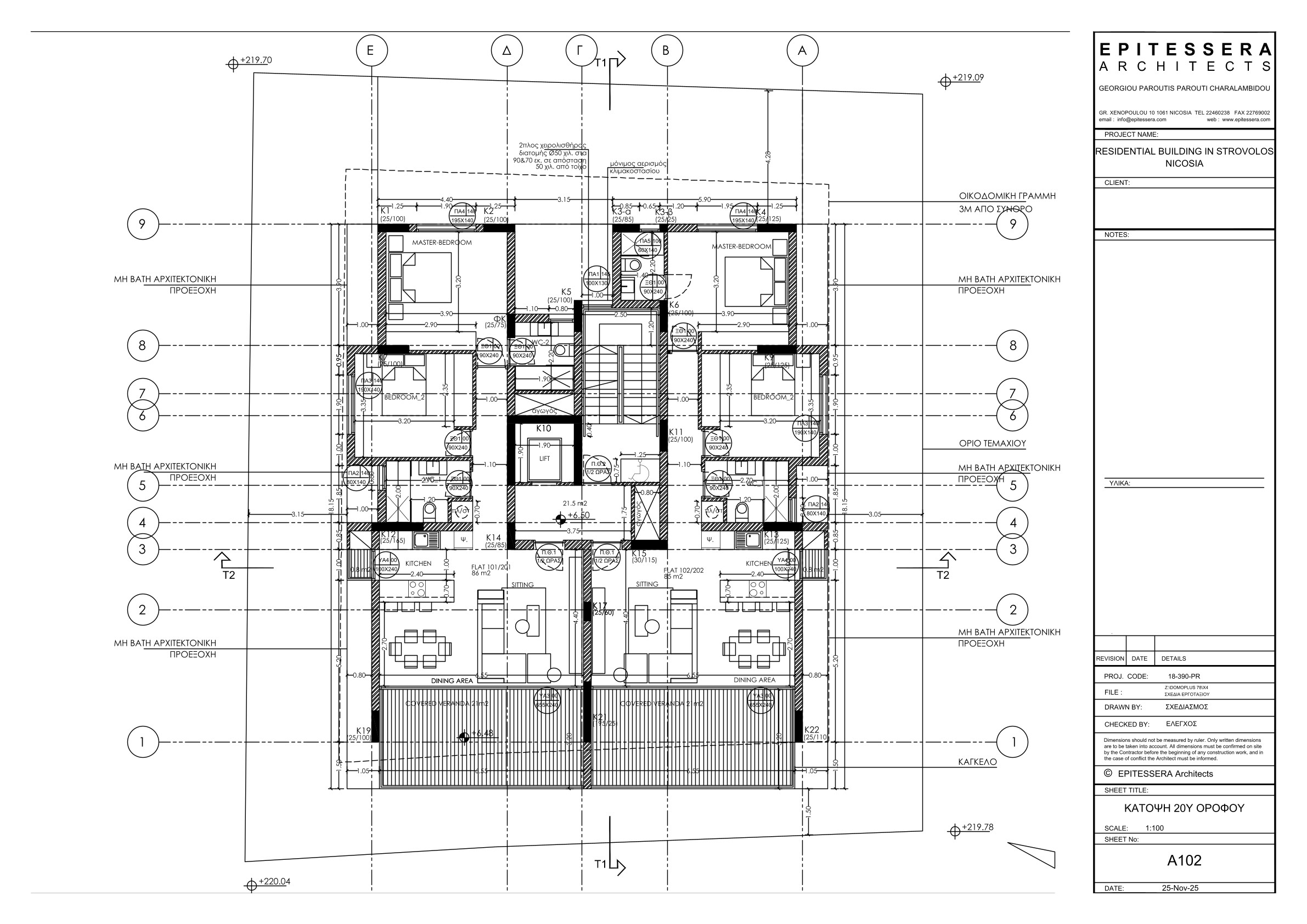
Η τριώροφη οικοδομή αποτελείται από πέντε (5) διαμερίσματα. Τέσσερα (4) των δύο (2) υπνοδωματίων και ένα (1) των τριών (3ων) υπνοδωματίων.
Ο πρώτος και ο δεύτερος όροφος διαθέτουν τέσσερα (4) διαμερίσματα. Δύο (2) διαμερίσματα των δύο (2) υπνοδωματίων ο κάθε όροφος. Ο τρίτος όροφος διαθέτει ένα (1) διαμερίσματα των τριών (3ων) υπνοδωματίων.
Στο υπόστεγο υπάρχουν λειτουργικά διαμορφωμένοι χώροι στάθμευσης, ένας για κάθε διαμέρισμα και αποθήκες, μία για κάθε διαμέρισμα.
Φωτογραφίες έργου
Κατόψεις έργου
Domoplus 78
| ΔΙΑΜΕΡΙΣΜΑ | ΑΡ. ΥΠΝΟΔΩΜΑΤΙΩΝ | ΚΛΕΙΣΤΟΙ ΧΩΡΟΙ | ΚΑΛΥΜΕΝΕΣ ΒΕΡΑΝΤΕΣ | ΑΠΟΘΗΚΗ | PARKING | ΔΙΑΘΕΣΙΜΟΤΗΤΑ |
|---|---|---|---|---|---|---|
| 101 | 2 | 86 | 22 | 3 | 1 | ΔΙΑΘΕΣΙΜΟ |
| 102 | 2 | 85 | 22 | 3 | 1 | ΔΙΑΘΕΣΙΜΟ |
| 201 | 2 | 86 | 22 | 3 | 1 | ΔΙΑΘΕΣΙΜΟ |
| 202 | 2 | 85 | 22 | 3 | 1 | ΔΙΑΘΕΣΙΜΟ |
| 301 | 3 | 106 | 29 | 7 | 1 | ΔΙΑΘΕΣΙΜΟ |
Όλα τα πιο πάνω είναι οι προδιαγραφές, τα υλικά και οι τιμές μονάδας που προβλέπονται για την ανέγερση των διαμερισμάτων. Σε περίπτωση που ο αγοραστής θελήσει να κάνει τροποποιήσεις υλικών θα πρέπει να συμφωνηθούν γραπτώς προηγουμένως. Το ίδιο ισχύει και για τυχόν κατεδαφίσεις εργασιών που έχουν ήδη εκτελεστεί. Οι αγοραστές δεν έχουν το δικαίωμα αλλαγών στην εξωτερική εμφάνιση της πολυκατοικίας και δεν δικαιούνται οποιανδήποτε προσθήκη η οποία θα δημιουργεί προβλήματα στην κάλυψη σε τετραγωνικά μέτρα σε αντίθεση με τις ισχύουσες πολεοδομικές διατάξεις. Οι τιμές που καθορίζονται στην Τεχνικές Προδιαγραφές είναι διαφορετικές των τιμών που θα αφαιρούνται σε περίπτωση άλλης επιλογής προμηθευτή από τον αγοραστή. Η συνεργασία των εταιρειών με συγκεκριμένους Οίκους προϋποθέτει την ομαλή και απρόσκοπτη εκτέλεση των εργασιών. Από τις τιμές που καθορίζονται στις τεχνικές προδιαγραφές θα αφαιρείται 30% σε περίπτωση επιλογής άλλου προμηθευτή από τον Αγοραστή.












